Picksley Crescent, Holton-Le-Clay, Grimsby

  • £389,950
Picksley Crescent Holton-Le-Clay Grimsby North East Lincolnshire DN36 5DR
To Buy For Sale
Picksley Crescent, Holton-Le-Clay, Grimsby
Picksley Crescent Holton-Le-Clay Grimsby North East Lincolnshire DN36 5DR
  • £389,950

Overview

  • House - Detached
  • Property Type
  • 4
  • Bedrooms
  • 2
  • Bathrooms

Description

NO FORWARD CHAIN – Beautiful Detached Home in Holton le Clay.
Joy Walker Estate Agents are pleased to offer this immaculately presented four-bedroom detached home, tucked away in a quiet cul-de-sac in the ever-popular village of Holton le Clay. Set on a generous plot, this stylish property has been thoughtfully updated to create a spacious and versatile family home. Inside, a welcoming hallway leads to three reception rooms including a formal lounge, a cosy family room with garden access, and an open-plan dining room flowing into a stunning high-spec kitchen. Complete with quartz worktops, high-gloss units, quality appliances, a breakfast bar, and bifold doors to the garden, the kitchen is ideal for modern family living. A utility room and ground-floor cloakroom add further convenience. Upstairs, four double bedrooms provide ample space, with the impressive master suite featuring a private dressing room and en-suite. Two beautifully appointed bathrooms offer both luxury and practicality, including a spa-style suite with freestanding bath and walk-in Aqualisa shower.
Outside, the landscaped rear garden with Indian sandstone patio offers a private, peaceful retreat. A large driveway, garage with EV charging point, and garden shed complete the picture. Located close to excellent schools, amenities, transport links, and countryside walks, this turn-key property is perfect for families seeking space, style and location. Early viewing is highly recommended.

MEASUREMENTS

All measurements are approximate.

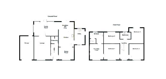
ACCOMMODATION

.

ENTRANCE HALL

Accessed via a composite door into the hallway which has wood effect LVT flooring, painted ceiling beams, radiator and large cloaks cupboard and carpeted stairs with feature balustrade.

WALK IN COAT CUPBOARD

Accessed from the hallway a further handy cloaks cupboard with racking and shelving, tiled flooring and door leading to the cloakroom.

CLOAKROOM/WC

The cloakroom benefits from a white two piece suite comprising of; Low flush wc and vanity hand wash basin with storage. Finished with tiled walls and floor, down lights and uPVC double glazed window to the rear.

LOUNGE

6.19m x 3.32m (20’3″ x 10’10”)
This large than average lounge has a uPVC double glazed bow window to the front aspect and uPVC double glazed French doors with side light panels leading to the garden room. finished with coving to the ceiling, carpeted flooring, two radiators and feature marble fire surround with matching heart6 and inset electric fire.

LOUNGE

GARDEN/SITTING ROOM

5.01m x 2.79m (16’5″ x 9’1″)
This handy addition can be accessed and open to the lounge and living kitchen creating an ideal family entertaining area, ample natural light comes from the dual aspect uPVC double glazed windows and French doors leading to the garden. Finished with carpeted flooring and radiator.

GARDEN/SITTING ROOM

LIVING DINING KITCHEN

4.18m x 4.32m (13’8″ x 14’2″)
The living dining kitchen benefits from modern grey gloss fronted wall and base units with matching pan draws and Quartz work surfaces with matching upstands and incorporates an inset sink with hand spray mixer tap, five ring gas hob with Quartz splashback and black chimney style extractor hood above and double electric fan assisted ovens beneath and integrated dishwasher. The quartz work surfaces extends to a handy breakfast bar area. This great space is open plan to the dining or further living area and creates a fabulous family space finished with coving and down lights to the ceiling, wood effect LVT flooring, radiator and uPVC double glazed bi-fold doors with Velux window above.

LIVING DINING KITCHEN

LIVING DINING KITCHEN

LIVING DINING KITCHEN

LIVING DINING KITCHEN

LIVING DINING KITCHEN

LIVING DINING KITCHEN

LIVING DINING KITCHEN

3.58m x 3.23m (11’8″ x 10’7″)
Open to the kitchen with continued decoration and flooring, radiator and uPVC double glazed window to the front aspect. Presently used as a dining area.

UTILITY ROOM

3.58m x 1.78m (11’8″ x 5’10”)
The handy utility room benefits from a range of matching units with Quartz work surfaces and matching upstands and incorporates a inset sink, under counter space for an automatic washing machine and tumble dryer and space for a freestanding fridge and freezer. Finished with wood effect vinyl flooring, modern tall radiator, uPVC double glazed window to the rear aspect and glazed uPVC door to the garden.

FIRST FLOOR LANDING

FIRST FLOOR LANDING

Having continued carpeted flooring and matching modern balustrade, coving to the ceiling and a uPVC double glazed window to the front aspect.

MASTER SUITE With Bedroom, Dressing Room & Ensuite

MASTER BEDROOM

3.59m x 3.28m (11’9″ x 10’9″)
The master bedroom is a great size and has a uPVC double glazed window to the front aspect, coving to the ceiling, with ceiling fan light, carpeted flooring and radiator. Door leading to the dressing room.

DRESSING ROOM

3.56m x 2.74m (11’8″ x 8’11”)
The handy dressing room has coving to the ceiling, down lights, two modern radiators, carpeted flooring and uPVC double glazed window to the front aspect.

DRESSING ROOM

ENSUITE BATHROOM WITH SHOWER ENCLOSURE

2.74m x 2.58m (8’11” x 8’5″)
The modern en suite bathroom benefits from a white four piece suite comprising of; Tear shaped freestanding bath with floor standing taps and hand shower attachment, walk in shower with dual shower heads one being rainfall and glazed screen with black trim, modern grey combination unit housing providing ample storage and housing the hand wash basin and low flush wc with hidden cistern. Finished with modern tiled walls to dado height, wood effect vinyl flooring, two tall radiators, coving and down lights to the ceiling and a uPVC double glazed window to the rear aspect.

ENSUITE BATHROOM WITH SHOWER ENCLOSURE

BEDROOM TWO

3.63m x 3.28m (11’10” x 10’9″)
The second double bedroom is to the front aspect with a uPVC double glazed window, carpeted flooring and radiator.

BEDROOM THREE

3.13m x 3.12m (10’3″ x 10’2″)
To the rear aspect with a uPVC double glazed window, carpeted flooring, radiator and built in airing cupboard which houses the wall mounted boiler.

BEDROOM FOUR

3.35m x 2.65m (10’11” x 8’8″)
To the rear of the property with a uPVC double glazed window this fourth bedroom is presently used as a hobby room and is finished with carpeted flooring and radiator.

SHOWER ROOM

1.54m x 0.77m (5’0″ x 2’6″)
The modern shower room benefits from a white three piece suite which comprises of; walk in shower with dual head one being rainfall and glazed screen with black trim and modern combination unit providing ample storage and housing the hand wash basin and low flush wc with hidden cistern. Finished with full modern tiling to the walls, wood effect laminate flooring, tall radiator and uPVC double glazed window to the rear aspect.

OUTSIDE

GARDENS

The property stands back from the road with hedged boundaries and double wrought iron access gates leading to the large front garden which is of low maintenance and provides ample off road parking for several vehicles. The front garden is mainly laid with shingle and has dual access to the rear garden. The rear garden has a mixture of hedging and fenced boundaries and is mainly laid to lawn with mature and well stocked borders. A large paved patio area provides ample space for outside entertaining for those lazy Sunday afternoons and evening. A true delighted for a budding gardener. Metal shed providing ample further storage space.

GARDENS

GARDENS

GARDENS

GARDENS

GARDENS

GARAGE

6.46m x 2.75m (21’2″ x 9’0″)
Having double doors to the front aspect and rear courtesy door and is fitted with electric, lighting, handy storage cupboard and houses the second wall mounted boiler.

FRONT VIEW

COUNCIL TAX BAND & EPC RATING

Council Tax Band – D
EPC – C

TENURE – FREEHOLD

We are informed by the seller that the tenure of this property is Freehold. Confirmation / verification has been requested. Please consult us for further details.

VIEWING ARRANGEMENTS

Please contact Joy Walker Estate Agents on 01472 200818 to arrange a viewing on this property.

OPENING TIMES

Monday – Friday 9.00 am to 5.15 pm. Saturday 9.00 am to 1.00 pm

Council Tax Band: D

Property Documents

Picksley Crescent, Holton-Le-Clay, Grimsby
EPC
  • Address Picksley Crescent Holton-Le-Clay Grimsby North East Lincolnshire DN36 5DR
  • City Grimsby
  • State/county North East Lincolnshire
  • Zip/Postal Code DN36 5DR

Details

Updated on January 23, 2026 at 8:24 am
  • Price: £389,950
  • Bedrooms: 4
  • Bathrooms: 2
  • Property Type: House - Detached
  • Property Status: To Buy

Floor Plans

image

Description:

Similar Listings

Compare listings

Compare
Cleethorpes
  • Cleethorpes