Plot 197, 26 Pippin Lane, Scartho Top

  • £229,950
Pippin Lane Springfield Park Scartho Top North East Lincolnshire DN33 2HL
Developments To Buy For Sale
Plot 197, 26 Pippin Lane, Scartho Top
Pippin Lane Springfield Park Scartho Top North East Lincolnshire DN33 2HL
  • £229,950

Overview

  • House - End Terrace
  • Property Type
  • 3
  • Bedrooms
  • 2
  • Bathrooms

Description

Located on the popular Springfield Development which is under construction with CYDEN HOMES is this BRAND NEW THREE BEDROOM END LINK HOUSE. The Quartz design is constructed to their usual very high standard with an excellent specification throughout having accommodation includes: Entrance hall, cloaks/wc, good sized lounge with open access into the full width fitted dining kitchen plus three bedrooms one with en suite and a family bathroom to the first floor. Double glazing. An enclosed rear garden. 10 year building guarantee.

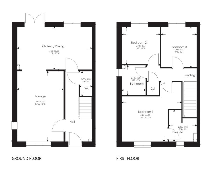
ACCOMMODATION

.

MEASUREMENTS

All measurements are approximate and taken from the builder’s plan.

GROUND FLOOR

.

ENTRANCE HALL

CLOAKS/WC

1.77 x 0.85 (5’9″ x 2’9″)

LOUNGE

5.53 x 3.28 (18’1″ x 10’9″)

KITCHEN/DINING ROOM

5.36 x 3.45 (17’7″ x 11’3″)
Having open access from the lounge

KITCHEN/DINING ROOM

Additional photo

FIRST FLOOR

LANDING

BEDROOM ONE

3.63 x 3.29 (11’10” x 10’9″)

BEDROOM ONE

EN SUITE SHOWER ROOM

2.24 x 1.98 (7’4″ x 6’5″)

BEDROOM TWO

3.38 x 2.98 (11’1″ x 9’9″)

BEDROOM THREE

3.29 x 2.54 (10’9″ x 8’3″)

BATHROOM

2.33 x 1.70 (7’7″ x 5’6″)

OUTSIDE

FRONT AND REAR GARDENS

With off road parking

GARAGE

SITE PLAN

TENURE – FREEHOLD

We are informed by the seller that the tenure of this property is Freehold. Confirmation / verification has been requested. Please consult us for further details.

CYDEN HOMES FREEHOLD MANAGEMENT

We are informed by the seller that the tenure of this property is Freehold, although there will be a management company for the grass cutting of the common areas etc. Confirmation / verification has been requested. Please consult us for further details.

COUNCIL TAX BAND

Council Tax Band not yet assessed.

VIEWING ARRANGEMENTS

Please contact Joy Walker Estate Agents on 01472 200818 to arrange a viewing on this property.

OPENING TIMES

Monday – Friday 9.00 am to 5.15 pm. Saturday 9.00 am to 1.00 pm

Council Tax Band: TBC

Property Documents

Plot 197, 26 Pippin Lane, Scartho Top
  • Address Pippin Lane Springfield Park Scartho Top North East Lincolnshire DN33 2HL
  • City Scartho Top
  • State/county North East Lincolnshire
  • Zip/Postal Code DN33 2HL

Details

Updated on January 16, 2026 at 10:25 pm
  • Price: £229,950
  • Bedrooms: 3
  • Bathrooms: 2
  • Property Type: House - End Terrace
  • Property Status: Developments, To Buy

Floor Plans

image

Description:

Similar Listings

Compare listings

Compare
Cleethorpes
  • Cleethorpes