Plot 4, Belfry Gardens, Off Great Coates Road, Grimsby

  • £595,000
Off Great Coates Road Grimsby North East Lincolnshire DN34 4NA
Developments To Buy For Sale
Plot 4, Belfry Gardens, Off Great Coates Road, Grimsby
Off Great Coates Road Grimsby North East Lincolnshire DN34 4NA
  • £595,000

Overview

  • House - Detached
  • Property Type
  • 4
  • Bedrooms
  • 2
  • Bathrooms
  • 2347
  • sqft

Description

An exclusive development of 5 EXECUTIVE DETACHED HOMES to be constructed in this stunning setting with views over Grimsby Golf Club. Plot 4 will be built by Bannister Development (Grimsby) Ltd to their usual high standard with the purchaser having a generous allowance to personalise their forever home. The accommodation includes Entrance hall, home office, formal lounge, living dining kitchen, utility room & cloaks/wc to the ground floor. Landing, master bedroom with dressing room & en suite plus three further bedrooms and a family bathroom/wc. There is an option to increase the accommodation to the second floor with two bedrooms and an en suite for an additional charge. Gas central heating (under floor heating to the ground floor. Double glazing. Double garage with additional off road parking. Front and rear gardens. The six bedroom design will be £645,000.

DRAFT DETAILS

PLEASE NOTE THESE ARE DRAFT PARTICULARS AWAITING FINAL APPROVAL FROM THE VENDOR, THEREFORE THE CONTENTS HEREIN MAY BE SUBJECT TO CHANGE AND MUST NOT BE RELIED UPON AS AN ENTIRELY ACCURATE DESCRIPTION OF THE PROPERTY.

STREET VIEW

STREET VIEW

REAR ELEVATION ILLUSTRATION

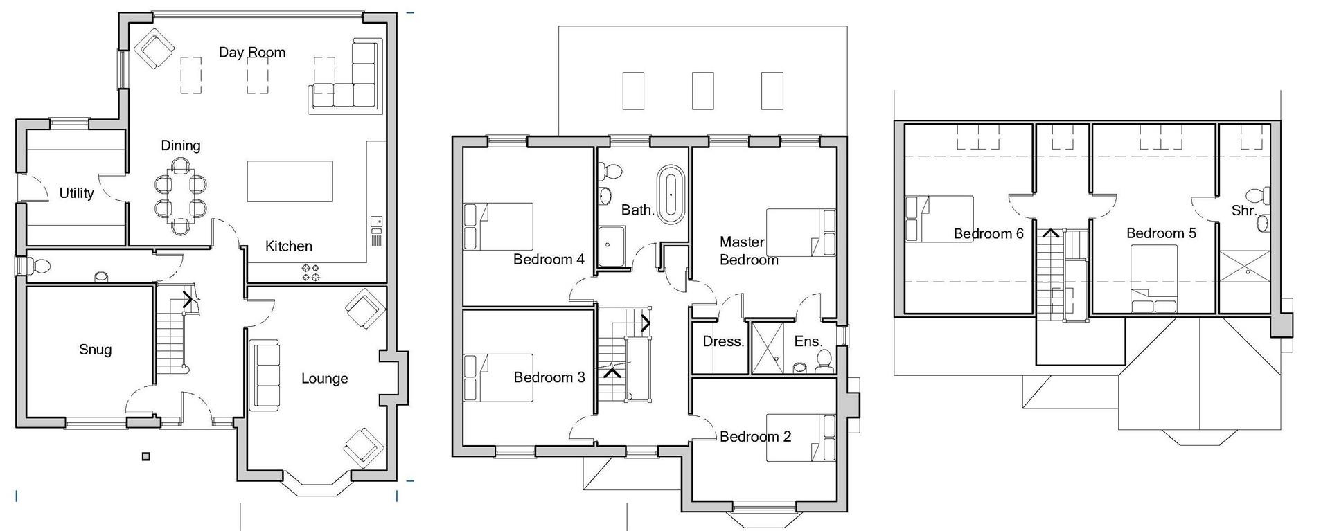
ACCOMMODATION

.

MEASUREMENTS

All measurements are approximate taken from the architect’s plans
Ground floor 121 sq.m
First floor 97 sq.m

GROUND FLOOR

.

ENTRANCE HALL

SNUG/HOME OFFICE

3.87 x 3.72 (12’8″ x 12’2″)

LOUNGE

5.45 x 4.11 (17’10” x 13’5″)

LIVING DINING KITCHEN

7.61 x 7.68 (24’11” x 25’2″)

UTILITY ROOM

3.43 x 2.92 (11’3″ x 9’6″)

CLOAKS/WC

FIRST FLOOR

LANDING

MASTER BEDROOM

4.87 x 4.11 (15’11” x 13’5″)

EN SUITE

2.40 x 1.50 (7’10” x 4’11”)

DRESSING ROOM

1.60 x 1.50 (5’2″ x 4’11”)

BEDROOM 2

4.11 x 3.51 (13’5″ x 11’6″)

BEDROOM 3

3.87 x 3.72 (12’8″ x 12’2″)

BEDROOM 4

4.53 x 3.72 (14’10” x 12’2″)

BATHROOM/WC

3.43 x 2.59 (11’3″ x 8’5″)

OPTIONAL

The property can built built as a six bedroom option with a cost of £645,000

SECOND FLOOR (OPTIONAL)

BEDROOM 5 (OPTIONAL)

5.51 x 3.57 (18’0″ x 11’8″)

EN SUITE SHOWER ROOM (OPTIONAL)

1.50 x 5.5 (4’11” x 18’0″)

BEDROOM 6 (OPTIONAL)

5.51 x 3.72 (18’0″ x 12’2″)

OUTSIDE

DOUBLE GARAGE

FRONT AND REAR GARDENS

SITE PLAN

SPECIFICATION

Full specification and allowances available – Please contact the office on 01472 200818

TENURE – FREEHOLD

We are informed by the seller that the tenure of this property is Freehold. In addition there will be a management company created for the common areas of the five property. Please consult us for further details.

VIEWING ARRANGEMENTS

Please contact Joy Walker Estate Agents on 01472 200818 to arrange a viewing on this property.

OPENING TIMES

Monday – Friday 9.00 am to 5.15 pm. Saturday 9.00 am to 1.00 pm

Council Tax Band: TBC

Property Documents

Plot 4, Belfry Gardens, Off Great Coates Road, Gri
  • Address Off Great Coates Road Grimsby North East Lincolnshire DN34 4NA
  • City Grimsby
  • State/county North East Lincolnshire
  • Zip/Postal Code DN34 4NA

Details

Updated on May 13, 2026 at 8:54 am
  • Price: £595,000
  • Property Size: 2347 sqft
  • Bedrooms: 4
  • Bathrooms: 2
  • Property Type: House - Detached
  • Property Status: Developments, To Buy

Floor Plans

image

Description:

Similar Listings

Compare listings

Compare
Cleethorpes
  • Cleethorpes