Field Head Road, Laceby, Grimsby

  • £285,000
Field Head Road Laceby, Grimsby North East Lincolnshire DN37 7SS
To Buy SSTC
Field Head Road, Laceby, Grimsby
Field Head Road Laceby, Grimsby North East Lincolnshire DN37 7SS
  • £285,000

Overview

  • House - Detached
  • Property Type
  • 4
  • Bedrooms
  • 2
  • Bathrooms

Description

An immaculately presented FOUR BEDROOM DETACHED FAMILY HOUSE which has been improved over the years by the current owner which now provides and excellent family home. Laceby is ideally placed for access into Grimsby Town centre, the A46 and Humberside airport. Originally the Show House the spacious accommodation includes: Entrance porch, welcoming entrance hall, cloaks/wc, good sized formal lounge which opens into the excellent sized dining room and conservatory together with a modern fitted kitchen with appliances and utility room to the ground floor. To the first floor there are four bedrooms all with fitted wardrobes and one with an en suite shower room and a superb family sized bathroom/shower room. Gas central heating system. uPVC double glazing. Security alarm. Integral garage. Well stocked gardens. Well worthy of an internal inspection. NO FORWARD CHAIN.

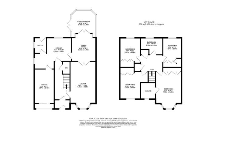
ACCOMMODATION

.

MEASUREMENTS

All measurements are approximate.

GROUND FLOOR

ENTRANCE PORCH

Approached via a uPVC entrance door having matching double glazed opaque windows and a tiled floor including underfloor heating leads into:-

ENTRANCE HALL

Again entered via a double glazed entrance door, this lovely hallway has luxury Amtico flooring together with white painted wall boarding to dado height, radiator including a decorative cover and coving to ceiling. The white spelled staircase leads up to the first floor accommodation.

CLOAKS/WC

Fitted with a small pedestal wash hand basin and a low flush wc. Extractor fan, radiator and wall mounted alarm pad.

LOUNGE (FRONT)

5.92 x 3.25 (19’5″ x 10’7″)
This excellent sized formal lounge has a walk in double glazed bay window to the front elevation plus a small oriel bay window to the side elevation. The focal point of this room is the polished marble effect fire surround which inset with a living flame gas fire. Coving to ceiling. Two fitted radiators. Double doors leads into the separate dining room

DINING ROOM

3.66 x 3.07 (12’0″ x 10’0″)
Situated between the lounge and the conservatory with access into the kitchen this good sized dining room has coving to ceiling, radiator and a fitted dado rail. Double doors leads into:-

CONSERVATORY

3.61 x 3.56 (11’10” x 11’8″)
A superb addition to this family home is this spacious conservatory which has double glazed windows and doors together with a vaulted insulated panelled roof which includes a ceiling light/fan. Radiator and striking laminate flooring.

KITCHEN

4.70m x 2.97m extending to 3.99m (15’5″ x 9’9″ ext
This modern high gloss kitchen is fitted with an abundance of Shaker style base and wall cupboards incorporating a built in electric oven, a five ring gas hob with a stainless steel extractor fan above a slimline wine cooler together with an integrated fridge and dishwasher. The contrasting work surfaces are inset with a ceramic sink and having matching splash backs. Additional lighting to the wall cupboards and LED lights to the kick boards. Two radiators. Striking laminate flooring. Radiator. Two double glazed windows. Coving to ceiling.

KITCHEN

KITCHEN

UTILITY ROOM

1.93 x 1.52 (6’3″ x 4’11”)
With matching white base and wall cupboards with contrasting work surfaces which has space beneath for washing machine etc. Striking laminate flooring. Double glazed window and door. Coving to ceiling. Radiator.

FIRST FLOOR

.

LANDING

Coving to ceiling and access to roof space.

BEDROOM ONE (FRONT)

4.75 x 3.35 (15’7″ x 10’11”)
This spacious main bedroom is fitted with a range of floor to ceiling wardrobes by Haagensens a reputable local company which provides ample hanging space. Double glazed bay window to the front elevation, coving to ceiling and radiator. Door leads into the en suite.

BEDROOM ONE

EN SUITE SHOWER ROOM

2.06 x 1.73 (6’9″ x 5’8″)
This contemporary styled shower room is fitted with a light grey vanity unit with cupboards below, a concealed wc with storage cupboards and a corner shower cubicle including an Aqualisa shower having sliding doors to the front. Heated towel rail and double glazed window.

BEDROOM TWO

3.43 x 3.53 (11’3″ x 11’6″)
Again fitted quality wardrobes, radiator, a double glazed window and a decorative plaster niche

BEDROOM TWO

BEDROOM THREE

2.95 x 2.51 (9’8″ x 8’2″)
Double glazed window, radiator and again having fitted bedroom furniture by Haagensens.

BEDROOM FOUR

2.95 x 2.51 (9’8″ x 8’2″)
This bedroom is again fitted with wardrobes by Haagensens and has a double glazed window and radiator.

BEDROOM FOUR

FAMILY BATHROOM/WC

2.79 x 2.13 (9’1″ x 6’11”)
This excellent sized bathroom is fitted with a suite in white comprising a panelled bath, a vanity unit comprising a semi recessed sink with cupboards below and a concealed wc together with a corner shower cubicle having sliding doors to the front and finished with water proof boarding. The remainder of the walls are tiled in a complementary ceramic tile having a striking border tile. Laminate flooring, and a heater towel rail. Double glazed window.

FAMILY BATHROOM/WC

OUTSIDE

INTEGRAL GARAGE

4.95 x 2.54 (16’2″ x 8’3″)
As previously mentioned this was the show home so the integral garage which is used as a store and has an electric door and further double glazed patio doors. Light and power. Personal door giving access to the kitchen.

THE GARDENS

Standing on a good sized plot, these extremely well maintained landscaped gardens are approached via driveway which provides excellent off road parking including a well stocked planted border, in addition, to the side of the house is a lawned area set behind a mature Laurel hedge. The enclosed rear garden enjoys a south westerly aspect which includes an excellent sized lawn with raised gravel borders planted with small bushes and shrubbery together with a raised rockery. included in the sale is the substantial UPVC garden store. Situated close to the property is a paved patio area ideal for outside entertaining, Outside tap.

THE GARDENS

THE GARDENS

THE GARDENS

SIDE GARDEN

TENURE – FREEHOLD

We are informed by the seller that the tenure of this property is Freehold. Confirmation / verification has been requested. Please consult us for further details.

COUNCIL TAX BAND & EPC RATING

Council Tax Band – D
EPC – C

VIEWING ARRANGEMENTS

Please contact Joy Walker Estate Agents on 01472 200818 to arrange a viewing on this property.

OPENING TIMES

Monday – Friday 9.00 am to 5.15 pm. Saturday 9.00 am to 1.00 pm

Council Tax Band: D

Property Documents

Field Head Road, Laceby, Grimsby
EE Rating
  • Address Field Head Road Laceby, Grimsby North East Lincolnshire DN37 7SS
  • City Laceby, Grimsby
  • State/county North East Lincolnshire
  • Zip/Postal Code DN37 7SS

Details

Updated on April 18, 2026 at 11:53 am
  • Price: £285,000
  • Bedrooms: 4
  • Bathrooms: 2
  • Property Type: House - Detached
  • Property Status: To Buy

Floor Plans

image

Description:

Similar Listings

Compare listings

Compare
Cleethorpes
  • Cleethorpes