Plot 151, 26 Kestrel Drive, Waltham

  • £344,950
Kestrel Drive Waltham Waltham North East Lincolnshire DN37 0FF
Developments To Buy SSTC
Plot 151, 26 Kestrel Drive, Waltham
Kestrel Drive Waltham Waltham North East Lincolnshire DN37 0FF
  • £344,950

Overview

  • House - Detached
  • Property Type
  • 4
  • Bedrooms
  • 0
  • Bathroom

Description

** NEW TO THE MARKET ** Cyden Homes are delighted to present this attractive FOUR BEDROOM DETATCHED family home, located on the popular Waltham Development of The Hyde. Finished to a high specification throughout comprising of a spacious versatile open plan living area to include; kitchen, dining area and snug, separate lounge, utility, cloakroom and study. FOUR spacious bedrooms with a good sized EN-SUITE, three further bedrooms, family bathroom. This JASPER offers, spacious garden and a single brick garage, 10-year new home warranty and double-glazed windows.

DRAFT DETAILS

PLEASE NOTE THESE ARE DRAFT PARTICULARS AWAITING FINAL APPROVAL FROM THE VENDOR, THEREFORE THE CONTENTS HEREIN MAY BE SUBJECT TO CHANGE AND MUST NOT BE RELIED UPON AS AN ENTIRELY ACCURATE DESCRIPTION OF THE PROPERTY.

MEASUREMENTS

All measurements are approximate.

PHOTOGRAPHS

All the photographs on this brochure are for illustrations purposes only.

ACCOMMODATION

.

ENTRANCE

HALLWAY

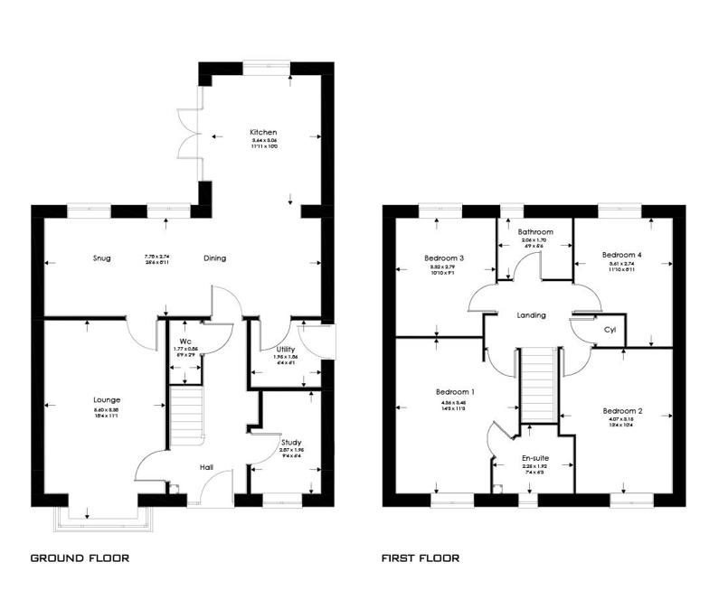
LOUNGE

5.60 x 3.38 (18’4″ x 11’1″)

LOUNGE

DINING/SNUG

7.78 x 2.74 (25’6″ x 8’11”)

KITCHEN

3.64 x 3.06 (11’11” x 10’0″)

KITCHEN

KITCHEN

UTILITY

1.95 x 1.86 (6’4″ x 6’1″)

STUDY

2.87 x 1.95 (9’4″ x 6’4″)

BEDROOM ONE

4.36 x 3.45 (14’3″ x 11’3″)

EN-SUITE

2.25 x 1.92 (7’4″ x 6’3″)

BEDROOM TWO

4.07 x 3.15 (13’4″ x 10’4″)

BEDROOM THREE

3.32 x 2.79 (10’10” x 9’1″)

BEDROOM FOUR

3.61 x 2.74 (11’10” x 8’11”)

FAMILY BATHROOM

GARDEN

OUTSIDE

GARAGE

Council Tax Band: TBC

Property Documents

Plot 151, 26 Kestrel Drive, Waltham
  • Address Kestrel Drive Waltham Waltham North East Lincolnshire DN37 0FF
  • City Waltham
  • State/county North East Lincolnshire
  • Zip/Postal Code DN37 0FF

Details

Updated on April 23, 2026 at 10:54 pm
  • Price: £344,950
  • Bedrooms: 4
  • Bathroom: 0
  • Property Type: House - Detached
  • Property Status: Developments, To Buy

Floor Plans

image

Description:

Similar Listings

Compare listings

Compare
Cleethorpes
  • Cleethorpes