Plot 148, 1 Dunnock Avenue, Waltham

  • £324,950
Dunnock Avenue Waltham Waltham North East Lincolnshire DN37 0FF
Developments To Buy SSTC
Plot 148, 1 Dunnock Avenue, Waltham
Dunnock Avenue Waltham Waltham North East Lincolnshire DN37 0FF
  • £324,950

Overview

  • House - Detached
  • Property Type
  • 4
  • Bedrooms
  • 2
  • Bathrooms

Description

**NEW TO THE MARKET** Situated on the very popular HYDE Development on the outskirts of the village of Waltham is this beautiful FOUR BEDROOM DETACHED FAMILY home offers a superb layout and stunning specification throughout under construction by CYDEN HOMES LIMITED. The Opal ground floor design comprises of a spacious open-plan kitchen-dining room, fitted kitchen and branded appliances. Also to the ground floor is a generous lounge with oak double doors and cloakroom. At the rear of the property this property is a second lounge/sunroom, ideal for a growing family. Upstairs are four good sized bedrooms, with bedroom one offering fitted wardrobes and en-suite. Three further bedrooms with a contemporary family bathroom. This home benefits from an enclosed rear garden, block paved driveway leading to a single integral garage.

MEASUREMENTS

All measurements are approximate.

PHOTOGRAPHS

All the photographs on this brochure are for illustrations purposes only.

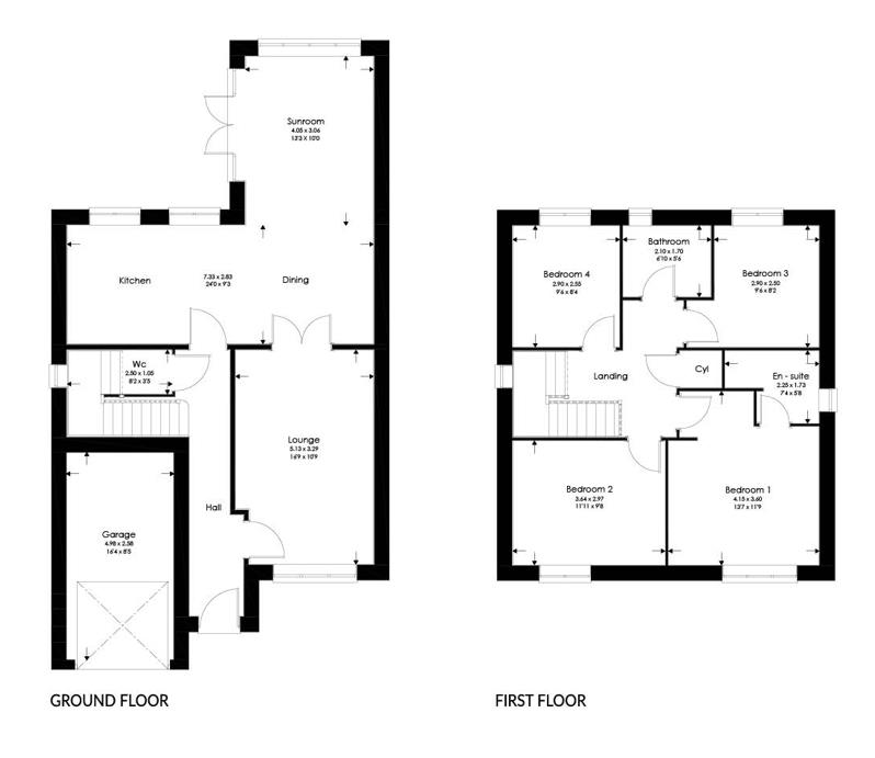
ACCOMMODATION

.

ENTRANCE HALL

CLOAKROOM/WC

2.50 x 1.05 (8’2″ x 3’5″)

LIVING ROOM

5.13 x 3.29 (16’9″ x 10’9″)

DINING KITCHEN

7.33 x 2.83 (24’0″ x 9’3″)

DINING KITCHEN

SUN ROOM

3.64 x 3.06 (11’11” x 10’0″)

FIRST FLOOR LANDING

MASTER BEDROOM

4.15 x 3.60 (13’7″ x 11’9″)

ENSUITE

2.25 x 1.73 (7’4″ x 5’8″)

BEDROOM 2

3.64 x 2.97 (11’11” x 9’8″)

BEDROOM 3

2.90 x 2.50 (9’6″ x 8’2″)

BEDROOM 4

2.90 x 2.55 (9’6″ x 8’4″)

FAMILY BATHROOM

2.10 x 1.70 (6’10” x 5’6″)

OUTSIDE

INTEGRAL GARAGE

4.98 x 2.58 (16’4″ x 8’5″)

SITE PLAN

VIEWING ARRANGEMENTS

Please contact Joy Walker Estate Agents on 01472 200818 to arrange a viewing on this property.

OPENING TIMES

Monday – Friday 9.00 am to 5.15 pm. Saturday 9.00 am to 1.00 pm

TENURE – FREEHOLD

We are informed by the seller that the tenure of this property is Freehold. Confirmation / verification has been requested. Please consult us for further details.

Council Tax Band: TBC

Property Documents

Plot 148, 1 Dunnock Avenue, Waltham
  • Address Dunnock Avenue Waltham Waltham North East Lincolnshire DN37 0FF
  • City Waltham
  • State/county North East Lincolnshire
  • Zip/Postal Code DN37 0FF

Details

Updated on April 24, 2026 at 12:39 am
  • Price: £324,950
  • Bedrooms: 4
  • Bathrooms: 2
  • Property Type: House - Detached
  • Property Status: Developments, To Buy

Floor Plans

image

Description:

Similar Listings

Compare listings

Compare
Cleethorpes
  • Cleethorpes