Plot 136, 2 Dunnock Avenue, Waltham.

  • £249,950
Dunnock Avenue Waltham Grimsby North East Lincolnshire DN37 0FF
Developments To Buy SSTC
Plot 136, 2 Dunnock Avenue, Waltham.
Dunnock Avenue Waltham Grimsby North East Lincolnshire DN37 0FF
  • £249,950

Overview

  • House - Semi-Detached
  • Property Type
  • 3
  • Bedrooms
  • 0
  • Bathroom

Description

** NEW RELEASE THE HYDE WALTHAM ** Cyden Homes are delighted to offer this THREE bedroom SEMI DETATCHED PROPERTY The Serpentine, in this highly sought after location of Waltham with a stunning specification throughout comprising of an kitchen diner complete with a contemporary fitted kitchen, lounge and ground floor cloakroom. THREE GOOD SIZED BEDROOMS one with an EnSuite and a main bathroom. Enclosed rear garden and a blocked driveway.

MEASUREMENTS

All measurements are approximate.

PHOTOGRAPHS

All the photographs on this brochure are for illustrations purposes only.

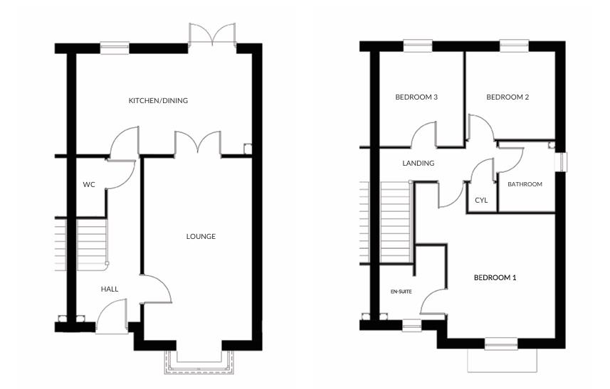
ACCOMMODATION

.

KITCHEN/DINER

5.36 x 3.05 (17’7″ x 10’0″)

KITCHEN/DINER

KITCHEN/DINER

KITCHEN/DINER

LOUNGE

5.03 x 3.31 (16’6″ x 10’10”)

CLOAKROOM / WC

1.77 x 0.85 (5’9″ x 2’9″)

MASTER BEDROOM

4.26 x 4.26 (13’11” x 13’11”)

EN-SUITE

2.25 x 1.98 (7’4″ x 6’5″)

BEDROOM TWO

2.72 x 2.67 (8’11” x 8’9″)

BEDROOM THREE

2.88 x 2.54 (9’5″ x 8’3″)

FAMILY BATHROOM

2.13 x 1.70 (6’11” x 5’6″)

Property Documents

Plot 136, 2 Dunnock Avenue, Waltham.
  • Address Dunnock Avenue Waltham Grimsby North East Lincolnshire DN37 0FF
  • City Grimsby
  • State/county North East Lincolnshire
  • Zip/Postal Code DN37 0FF

Details

Updated on March 6, 2026 at 9:10 am
  • Price: £249,950
  • Bedrooms: 3
  • Bathroom: 0
  • Property Type: House - Semi-Detached
  • Property Status: Developments, To Buy

Floor Plans

image

Description:

Similar Listings

Compare listings

Compare
Cleethorpes
  • Cleethorpes