Plot 104, 57 Glebe Road, Scartho

  • £329,950
Glebe Road Scartho Scartho North East Lincolnshire DN33 2NH
Developments To Buy For Sale
Plot 104, 57 Glebe Road, Scartho
Glebe Road Scartho Scartho North East Lincolnshire DN33 2NH
  • £329,950

Overview

  • House - Detached
  • Property Type
  • 4
  • Bedrooms
  • 2
  • Bathrooms

Description

Cyden Homes are delighted to present this attractive FOUR BEDROOM DETATCHED family home, located on the popular Scartho Development of Kensington Green. Finished to a high specification throughout comprising of a spacious versatile open plan living area to include; kitchen, dining area and snug, separate lounge, utility, cloakroom and study. FOUR spacious bedrooms with a good sized EN-SUITE, three further bedrooms, family bathroom. This JASPER has a spacious garden and a single brick garage, 10-year new home warranty and double-glazed windows.

MEASUREMENTS

All measurements are approximate.

PHOTOGRAPHS

All the photographs on this brochure are for illustrations purposes only.

ACCOMMODATION

.

ENTRANCE

HALLWAY

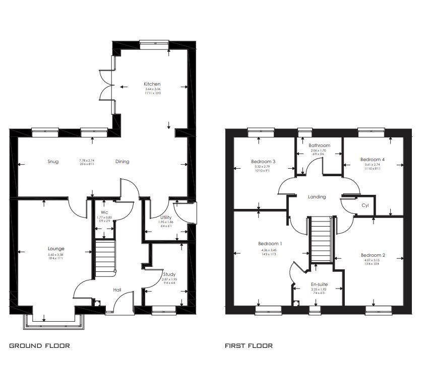
LOUNGE

5.60 x 3.38 (18’4″ x 11’1″)

LOUNGE

DINING/SNUG

7.78 x 2.74 (25’6″ x 8’11”)

KITCHEN

3.64 x 3.06 (11’11” x 10’0″)

KITCHEN

KITCHEN

UTILITY

1.95 x 1.86 (6’4″ x 6’1″)

STUDY

2.87 x 1.95 (9’4″ x 6’4″)

BEDROOM ONE

4.36 x 3.45 (14’3″ x 11’3″)

EN-SUITE

2.25 x 1.92 (7’4″ x 6’3″)

BEDROOM TWO

4.07 x 3.15 (13’4″ x 10’4″)

BEDROOM THREE

3.32 x 2.79 (10’10” x 9’1″)

BEDROOM FOUR

3.61 x 2.74 (11’10” x 8’11”)

FAMILY BATHROOM

GARDEN

OUTSIDE

GARAGE

SITEPLAN

Council Tax Band: TBC

Property Documents

Plot 104, 57 Glebe Road, Scartho
  • Address Glebe Road Scartho Scartho North East Lincolnshire DN33 2NH
  • City Scartho
  • State/county North East Lincolnshire
  • Zip/Postal Code DN33 2NH

Details

Updated on December 16, 2025 at 9:38 pm
  • Price: £329,950
  • Bedrooms: 4
  • Bathrooms: 2
  • Property Type: House - Detached
  • Property Status: Developments, To Buy

Floor Plans

image

Description:

Similar Listings

Compare listings

Compare
Cleethorpes
  • Cleethorpes